家づくりは、一生に一度の大きな物語です。(稀に2度目の方もいますが…)
私たちフォルツァは、その物語が最高のものになるように、お施主さまと建築家の出会いをプロデュースし、その歩みに伴走しています。
今回お届けするのは、現在進行中のある家づくりの記録です。
福岡を拠点に、土地と人の個性を鮮やかに結びつける女性建築家。
彼女が手がけるプロジェクトの舞台裏を、コンペから上棟、そして完成へと向かう全5回の連載レポートとして公開します。
建築家は、何を考え、どう形にしていくのか。
プロフェッショナルの思考と、現場の熱量。
その「家づくりの真実」に迫るシリーズ、いよいよスタートです。
―――
フォルツァが手がける家づくり、その建築家コンペにおいて、際立った評価を誇る建築家がいます。
ソルト建築設計事務所の西岡梨夏さんです。
彼女が掲げるデザインコンセプトには、日本古来の言葉である「塩梅(あんばい)」という思想が根底に流れています。
料理における「塩」は、単なる味付けの調味料ではありません。
素材が本来持っている旨みを、極限まで引き出すための重要な役割を担っています。
建築もそれと同じ。
西岡さんは、その土地が持つ空気(バショ)、住まう人の想い(ヒト)、使う材料(モノ)、そしてそこで営まれる暮らし(コト)。
さらには、それらを形にする職人たちの技。
それらすべての「素材」の力を最大限に引き出すデザインを目指しています。
そんな「住み手の実感を大切にした空間づくり」を得意とする彼女は、これまで数々のコンペで選ばれてきました。
建築家コンペは、複数のプロが同じ条件(予算、敷地、要望)をもとに、一組のお施主さまのためにプランを競う場。
その厳しい舞台で、なぜ彼女の提案は、これほどまでにお施主さまの心を捉えて離さないのでしょうか。
「私は、自分のデザインを押し付けることは絶対にしません」
西岡さんは、冷静に、それでいて確信に満ちた口調でそう語ります。
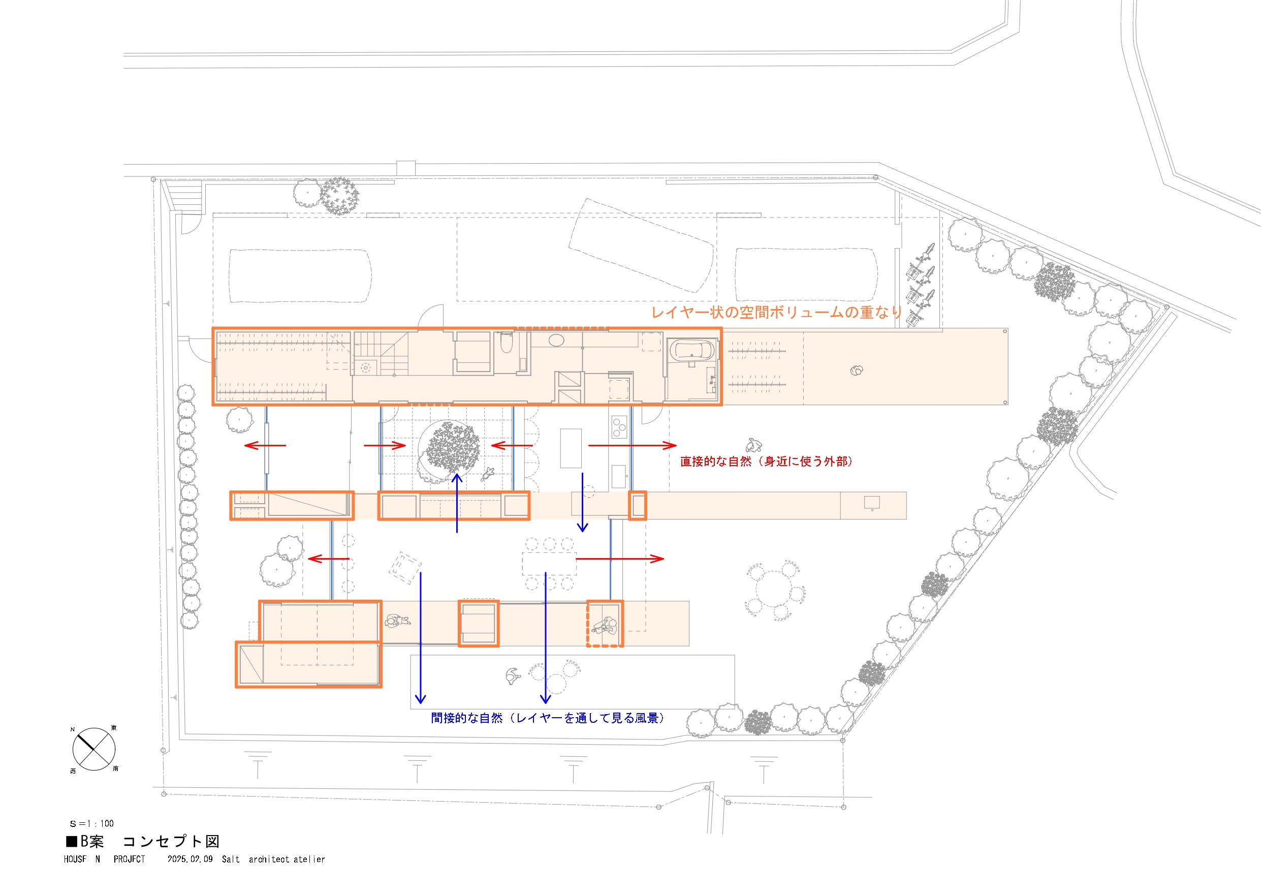
今回のN邸のコンペにおいても、彼女が提示したのは「A案」と「B案」という、
全く異なる2つのアプローチでした。


「お施主さまが要望書に書かれたことを、そのまま線にする。
それは建築家の本来の仕事ではなく、ただの”図面描き”だと思うんです。
ご本人さえまだ気づいていない”より良い解決策”を、敷地のポテンシャルを見つけ出し、驚きと深い納得を届けること。
それこそが、私たちが介在する意味であり、役割ですから」
あえて2つの正解を提示する理由。
それは、プランをお施主さまが自分自身の心と向き合うための「鏡」にするためだと、私たちは考えます。
例えば「要望を忠実に、丁寧に反映した、安心感のあるプラン」と、「建築家としての感性で、要望の枠を大胆に超えてきたプラン」。
この2つの選択肢を前に「どちらも良くて選べない!」と贅沢に迷い、楽しみながら比較するプロセスを経て初めて、お施主さまは自分でも気づかなかった本音に直面します。
「あ、私は機能性よりも、この窓から見える庭の景色を何より一番に守りたかったんだ」
「便利さばかり求めていたけれど、本当に欲しかったのはこの静かな空間だったんだ」
それは、単なる「建物の形」を選ぶ作業ではありません。
お施主さまがこれから送る人生の優先順位を、一つひとつ整理し、価値観の輪郭をはっきりさせていく。
西岡さんの提案には、そんな濃密な対話のきっかけが詰まっているのです。
お施主さまの想いを否定せず、かといって言いなりにもならない。
素材の旨みを引き出す「塩梅」を見極め、プロとしての最適解を冷静に導き出す。
今回のN邸プロジェクトも、この「2つのプラン」という贅沢な問いかけから、静かに、そして確かに熱く物語が動き始めました。
―――
次回は、設計の核心に迫るエピソードをご紹介します。
「南側の庭」と「西側の絶景」。
その2つの魅力を天秤にかけ、西岡さんが下したある「贅沢な決断」とは――。
第2回:【設計編】「土地の素材」の旨みを引き出す、引き算の美学。
どうぞお楽しみに。















